Версия для печати Версия для печати

458.162.21.1.br Geberit Duofix | инсталляция для унитаза Set 4 in 1 (бронза)

Цена: 20,700р.
На складе: да
Кол-во:  

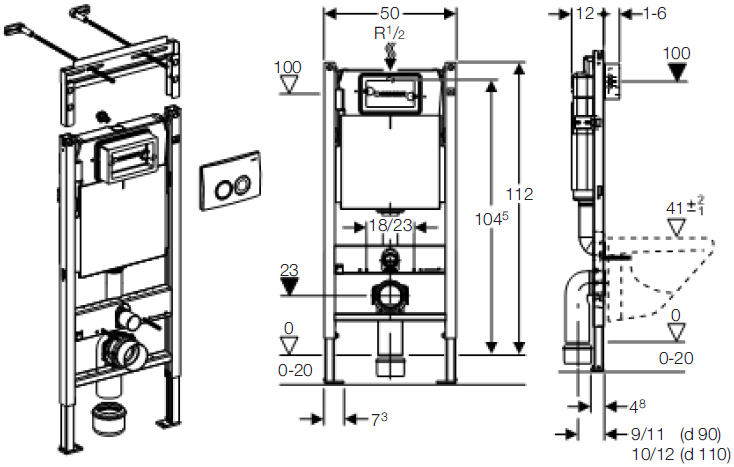
Инсталляция для подвесного унитаза Geberit (Швейцария) серии Duofix с клавишей смыва в цвете бронза;

Монтаж: в гипсокартонные стены на высоту рамы или по высоте помещения перед капитальной либо гипсокартонной стеной. Не подходит для бетонирования;

Монтажная глубина: 120 мм;

Комплектация: инсталляция, 2 резьбовые шпильки M12 для крепления санфаянса, 2 анкера для крепления к стене, комплект звукоизоляции, крепёжные элементы, смывная клавиша Delta21;

Смысвной бачок скрытого монтажа - модель UP182, полностью герметизированный от попадания конденсата;

Двойной смыв со смывной клавишей в цвете бронза - Delta21;

Рама с отверстиями в 9 мм для крепления;

Ножки оцинкованные, с бесступенчатой регулировкой 0-20 см;

Опорная площадка из пластика, глубина подходит для монтажа в профиль UW5;

Гибкая подводка для углового запорного вентиля прикручивается без применения инструментов;

Регулируемый объём смыва, (л): 3-4/6-9 л;

Подвод воды: по центру сзади или сверху;

Гарантия производителя: 10 лет.

Дизайн: Ретро
Серия: DUOFIX
Тип изделия: инсталляция+клавиша смыва (комплект)
Производитель: GEBERIT
Страна: Швейцария
Работает на основе WebAsyst Shop-Script